от 2 350 ₽
Нашли дешевле?
Наличие уточняйте у наших менеджеров
Цены
Траверса ТМ-74 (Zn)
3 871 ₽
/шт Траверса ТМ-74 (эмаль)
2 350 ₽
/шт
Описание
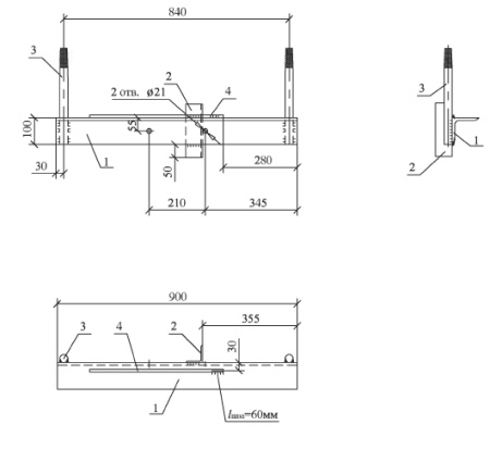
Траверсы ТМ-74 (проект 27.0002-39) используются во время установки опор, монтажа и проведения высоковольтных ЛЭП для крепления проводов. Крепление осуществляется с применением специальных хомутов, марка которых определяется типом стойки. Хомут тмарки Х-1 используется для крепления траверсы ТМ-74 на стойки СВ105 и хомут Х-42 на стойки СВ110. Поставляются данные хомуты в отдельном порядке.
Все траверсы ТМ-74 производятся из прочной углеродистой стали, не содержащей легирующих компонентов. Битумный лак БТ-577 наносится на поверхность траверс и образует стойкое антикоррозийное покрытие.
Вес: 13 кг
Спецификация траверсы ТМ-74:
| ПОЗИЦИЯ | НАИМЕНОВАНИЕ ДЕТАЛИ | КОЛИЧЕСТВО | МАССА, КГ |
| 1 | Уголок 100х100х8 ГОСТ 8509-93 L=900 | 1 | 13 |
| 2 | Круг 30 ГОСТ 2590-88 L=360 | 2 | |
| 3 | Уголок 63х63х8 ГОСТ 8509-93 L=200 | 1 | |
| 4 | Круг 10 ГОСТ 2590-88 L=500 | 1 |
