от 5 351 ₽
Нашли дешевле?
Наличие уточняйте у наших менеджеров
Цены
Траверса ТМ-71 (Zn)
8 829 ₽
/шт Траверса ТМ-71 (эмаль)
5 351 ₽
/шт
Описание
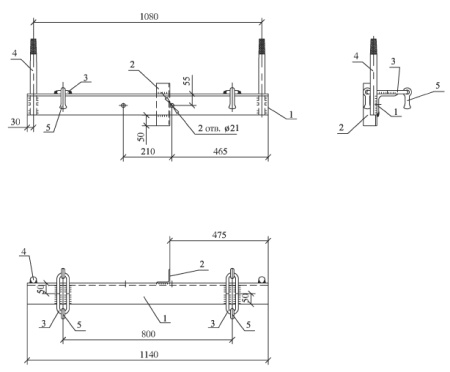
Траверсы ТМ-71 (проект 27.0002-36) служат для крепления проводов к стойкам СВ во время монтажа высоковольтных воздушных линий 10 кВ.
Крепежные хомуты, благодаря которым осуществляется непосредственное крепление траверсы, подбираются в зависимости от типа стойки. К стойкам типа СВ105 траверса крепится при помощи хомута Х-1, а к стойкам типа СВ110 при помощи хомута Х-42. Поставка хомутов Х-1 и Х-42 производится по отдельному заказу.
В качестве материала для изготовления траверсы ТМ-71 применяется углеродистая сталь высокого качества. Поверхность готового изделия покрывают лаком битумным БТ-577, что обеспечивает стойкую антикоррозийную защиту.
Вес: 21.8 кг
Спецификация траверсы ТМ-71:
| ПОЗИЦИЯ | НАИМЕНОВАНИЕ ДЕТАЛИ | КОЛИЧЕСТВО | МАССА, КГ |
| 1 | Уголок 100х100х8 ГОСТ 8509-93 L=640 | 1 | 21.8 |
| 2 | Серьга С 7-16 | 4 | |
| 3 | Круг 16 ГОСТ 2590-88 L=254 | 4 | |
| 4 | Круг 30 ГОСТ 2590-88 L=260 | 2 | |
| 5 | Уголок 63х63х5 ГОСТ 8509-93 L=200 | 1 |
