от
Нашли дешевле?
Наличие уточняйте у наших менеджеров
Цены
Траверса ТМ-69 (Zn)
Траверса ТМ-69 (эмаль)
Описание
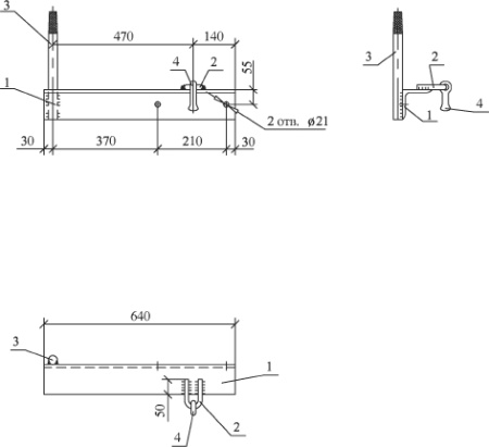
Траверсы ТМ-69 (проект 27.0002-34) применяются для креплении проводов в период установки анкерных опор высоковольтных ЛЭП 10 кВ.
Крепление траверсы ТМ-69 к стойкам СВ осуществляется с использованием специальных крепежных устройств - хомутов. Для каждой из стоек необходимо использовать определенный тип хомута: для стойки СВ105 - тип Х-1, а для стойки СВ110 - тип Х-42. Заказывать хомуты необходимо отдельно, так как к траверсам в комплект они не входят.
При изготовлении траверсы ТМ-69 используется только качественная углеродистая сталь, придающая изделию прочность. Для придания долговечности и обеспечения антикоррозийных свойств изделия покрывают битумным лаком БТ-577.
Вес: 10.55 кг
Спецификация траверсы ТМ-69:
| ПОЗИЦИЯ | НАИМЕНОВАНИЕ ДЕТАЛИ | КОЛИЧЕСТВО | МАССА, КГ |
| 1 | Уголок 100х100х8 ГОСТ 8509-93 L=640 | 1 | 10.55 |
| 2 | Серьга С 7-16 | 1 | |
| 3 | Круг 16 ГОСТ 2590-88 L=254 | 1 | |
| 4 | Круг 30 ГОСТ 2590-88 L=360 | 1 |
