Траверсы ТМ-63 производятся в соответствии с типовым проектом 27.0002-28
При установке опор высоковольтных воздушных ЛЭП номинальным напряжением 10 кВ траверса ТМ-63 используется для крепления проводов линии.
Производство траверсы ТМ-63 осуществоляется из углеродистой стали, которая отличается высокой прочностью и надежностью. Для придания траверсе антикоррозионной стойкости она покрывается лаком на битумной основе типа БТ-577.
Крепление траверсы на опоре ЛЭП выполняется специальными крепежными хомутами, при этом каждый тип хомутов расcчитан на применение с определенным видом стойки. Хомуты Х-1 используются со стойками СВ105 ,а хомуты Х-42 - со стойкой СВ110. Поставка хомутов для определенного вида опор выполняется по отдельному заказу.
Вес: 22.3 кг
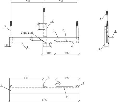
Спецификация траверсы ТМ-63:
| ПОЗИЦИЯ | НАИМЕНОВАНИЕ ДЕТАЛИ | КОЛИЧЕСТВО | МАССА, КГ |
| 1 | Уголок 100х100х8 ГОСТ 8509-93 L=1160 | 1 | 22.3 |
| 2 | Круг 30 ГОСТ 2590-88 L=360 | 3 | |
| 3 | Уголок 63х63х5 ГОСТ 8509-93 L=385 | 1 | |
| 4 | Круг 10 ГОСТ 2590-88 L=250 | 1 |
