от 2 997 ₽
Нашли дешевле?
Наличие уточняйте у наших менеджеров
Цены
Траверса ТМ-61 (Zn)
4 944 ₽
/шт Траверса ТМ-61 (эмаль)
2 997 ₽
/шт
Описание
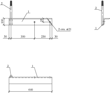
Траверсы ТМ-61 выпускаются в соответствии с типовоым проектом 27.0002-26.
Траверса ТМ-61 необходима в процессе монтажа выысоковольтных воздушных ЛЭП номинальным напряжением 10кВ и применяется для крепления проводов на опорах ЛЭП.
Доя обеспечения крепления проводов траверса имеет насечку под изоляторы типов ШФ10-Г, ШФ20-Г, ШФУ10. Траверса устанавливается на опоре только вместе с траверсой ТМ-73 и накладкой ОГ-52. Фикрисуется траверса хомутами типа Х-51, которые поставляются отдельно.
Габариты: 26х585х1060мм
Вес: 9.85 кг
Спецификация траверсы ТМ-61:
| ПОЗИЦИЯ | НАИМЕНОВАНИЕ ДЕТАЛИ | КОЛИЧЕСТВО | МАССА, КГ |
| 1 | Уголок 100х100х8 ГОСТ 8509-93 L=640 | 1 | 9.85 |
| 2 | Круг 30 ГОСТ 2590-88 L=360 | 1 |
