от
Нашли дешевле?
Наличие уточняйте у наших менеджеров
Цены
Траверса ТМ-57 (Zn)
Траверса ТМ-57 (эмаль)
Описание
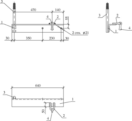
Траверсы ТМ-57 (проект 27.0002-22) используются для осуществления крепления проводов высоковольтных линий электропередачи (10 кВ) в период установки промежуточных анкерных опор. Данное крепление возможно только с использованием крепежных хомутов определенных марок. Для стойки СВ110 применяют хомуты марки Х-42, а для стойки СВ105 - хомуты марки Х-1. Нужные хомуты поставляются по отдельному заказу.
Материалом для производства траверсы ТМ-57 служит углеродистая сталь высокого качества. Для защиты от коррозии готовое изделие покрывают специальным битумным лаком (БТ-577).
Вес: 10.55 кг
Спецификация траверсы ТМ-57:
| ПОЗИЦИЯ | НАИМЕНОВАНИЕ ДЕТАЛИ | КОЛИЧЕСТВО | МАССА, КГ |
| 1 |
Уголок 100х100х8 ГОСТ 8509-83 L=640 |
1 | 10.55 |
| 2 | Круг 16 ГОСТ 2590-88 L=254 | 1 | |
| 3 |
Cерьга С 7-16 |
1 | |
| 4 | Круг 30 ГОСТ 2590-88 L=360 | 1 |
