Траверсы ТМ-51 производятся в соответствии с типовым проектом 27.0002-16.
Траверса ТМ-51 используется при установке опор воздушных высоковольтных ЛЭП номинальным напряжением 10 кВ и предназначена для осуществления крепления прокладываемых проводов.
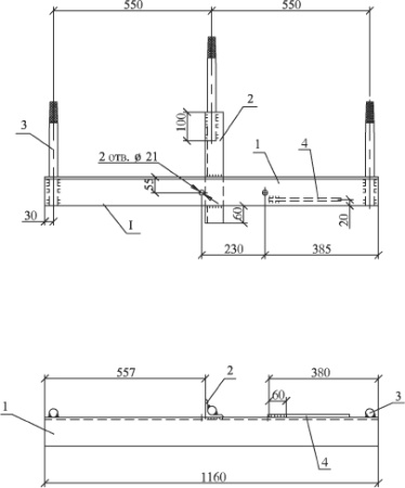
На траверсе имеются штыри для установки изоляторов ШФ10-Г, ШФ20-В, ШС10-Д. Изоляторы на штырях крепятся с помощью колпачков КП-22, К-6, К-7 и К-9. Провода на изоляторах закрепляются специальной проволочной вязкой ВШ-1, а также спиральной вязкой ПВС.
Качество и надежность траверсы ТМ-51 определяются свойствами углеродистой стали, из которой изготовлена траверса. В качестве метода защиты от коррозии применяется покрытие траверсы битумным лаком БТ-577.
Для крепления траверсы на стойке используются хомуты типов Х-1 (при установке траверсы на стойке СВ105), Х-42 (при установке на стойке СВ110). Необходимые для выбранного типа стоек хомуты поставляются отдельным заказом.
Вес: 22.3 кг
Спецификация траверсы ТМ-51:
| ПОЗИЦИЯ | НАИМЕНОВАНИЕ ДЕТАЛИ | КОЛИЧЕСТВО | МАССА, КГ |
| 1 | Уголок 100х100х8 ГОСТ 8509-83 L=1160 | 1 | 30,2 |
| 2 | Уголок 63х63х5 ГОСТ 8509-83 L=385 | 1 | |
| 3 | Круг 30 ГОСТ 2590-88 L=360 | 3 | |
| 4 |
Круг 10 ГОСТ 2590-88 L=250 |
1 |
