от 5 231 ₽
Нашли дешевле?
Наличие уточняйте у наших менеджеров
Цены
Траверса ТМ-1 (Zn)
8 627 ₽
/шт Траверса ТМ-1 (эмаль)
5 231 ₽
/шт
Описание
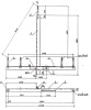
Назначением траверсы ТМ-1 является выполнение крепления проводов (без изоляции) к стойкам типа СВ-105 при установлении промежуточных опор ЛЭП 10 кВ.
Производятся траверсы ТМ-1 из высококачественной углеродистой стали согласно с требованиями типового проекта 3.407.1-143.8.1. Для придания антикоррозийных свойств траверсы ТМ-1 покрывают специальным лаком БТ-577. На траверсе ТМ-1 расположены штыри для изоляторов таких типов: ШФ-10Г, ШС-10Д, ШФ-20В, для крепления которых необходимо применять колпачки К-7, К-6, К-9, КП-22Ю. Крепление траверсы к стойке типа СВ-105 происходит при помощи хомута серии Х-1. Заказ и доставка хомута серии Х-1 клиентам производятся отдельно.
Габариты изделия: 140мм х 1495мм х 1460мм.
Вес: 17.2 кг
Спецификация траверсы ТМ-1:
| ПОЗИЦИЯ | НАИМЕНОВАНИЕ ДЕТАЛИ | КОЛИЧЕСТВО | МАССА, КГ |
| 1 | Уголок 70х70х5 ГОСТ8509-86 | 1 | 17.2 |
| 2 | Уголок 70х70х5 ГОСТ8509-86 | 1 | |
| 3 | Круг 22 ГОСТ2590-71 | 1 | |
| 4 | Круг 10 ГОСТ2590-71 | 1 | |
| 5 | Штырь Ш-20-2-К-30 ГОСТ 34-13-931-86 | 2 |
